PZ73H手动刀型闸阀
- 销售:
- 销售:
- 传真:
详情介绍
- 产品介绍
- 服务承诺
- 订货流程
PZ73H手动刀闸阀采用对夹连接采用刀型闸板结构,也叫做刀型闸阀。安装距离短、重量轻适合长纤维、颗粒性介质。这种耐磨刀闸阀广泛应用于各种工业领域,特别是采矿、钢铁工业--用于煤炭、滤渣浆,净化装置--用于废水、泥浆、污物及带有悬浮物的澄清水,造纸工业--用于任何浓度纸浆、料水混合物,电站除灰--用于灰渣浆液等专业管道系统。
产品特点
1、结构简单、造型美观、全通径流道、流阻系数小。闸板提升时,同时将密封面上的粘物给刮除,自动清除了杂物;
2、不锈钢闸板可防止腐蚀引起的密封泄漏。整体不锈钢材质,防止了腐蚀破坏,使用寿命长;
3、可选用各种配管法兰标准及法兰密封面型式,还可选用手动、蜗轮传动、电动、气动、液动等各种驱动方式,满足用户不同需求。
执行标准
设计规范:GB/12234 DIN3356
法兰连接:ANSI Bl6.5 GB/T9113 JB/T79 DIN 2543-2545
试验与检验:GB/T 13927 DIN3230 API598
性能参数
基本型号 | PZ73H | PZ73Y | PZ73F | |
工作压力(MPa) | 1.6~2.5 Calss150 | |||
口径(mm) | DN50-DN2000 2″-80″ | |||
适用介质 | 水、油、气、醋酸类、硝酸类等其他介质 | |||
可选材料 | 阀体 | WCB CF8 CF8M CF3 CF3M | ||
闸板 | WCB CF8 CF8M CF3 CF3M | |||
阀杆 | WCB CF8 CF8M CF3 CF3M | |||
密封面 | 不锈钢 司太立合金 碳化钨 PTFE | |||
填料 | 柔性石墨 PTFE | |||

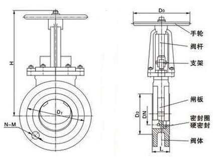
主要外形尺寸
MPa | DN | L | D | D1 | D2 | H | N-M | D0 | W(Kg) |
1.0 | 50 | 43 | 160 | 125 | 100 | 285 | 4-M16 | 180 | 8 |
65 | 46 | 180 | 145 | 120 | 298 | 4-M16 | 180 | 10 | |
80 | 46 | 195 | 160 | 135 | 315 | 4-M16 | 220 | 12 | |
100 | 52 | 215 | 180 | 155 | 365 | 8-M16 | 220 | 14 | |
125 | 56 | 245 | 210 | 185 | 400 | 8-M16 | 230 | 22 | |
150 | 56 | 280 | 240 | 210 | 475 | 8-M20 | 280 | 29 | |
200 | 60 | 335 | 295 | 265 | 540 | 8-M20 | 360 | 38 | |
250 | 68 | 390 | 350 | 320 | 630 | 12-M20 | 360 | 66 | |
300 | 78 | 440 | 400 | 368 | 780 | 12-M20 | 400 | 100 | |
350 | 78 | 500 | 460 | 428 | 885 | 16-M20 | 400 | 119 | |
400 | 102 | 565 | 515 | 482 | 990 | 16-M22 | 400 | 195 | |
450 | 114 | 615 | 565 | 532 | 1100 | 20-M22 | 530 | 285 | |
500 | 127 | 670 | 620 | 585 | 1200 | 20-M22 | 530 | 389 | |
600 | 154 | 780 | 725 | 685 | 1450 | 20-M27 | 600 | 529 | |
700 | 165 | 895 | 840 | 800 | 1700 | 24-M27 | 600 | 790 | |
800 | 190 | 1010 | 950 | 898 | 2000 | 24-M30 | 680 | 850 | |
900 | 203 | 1110 | 1050 | 1005 | 2300 | 28-M30 | 680 | 900 | |
1000 | 216 | 1220 | 1160 | 1115 | 2500 | 28-M30 | 700 | 1050 | |
1200 | 254 | 1450 | 1380 | 1325 | 2800 | 32-M36 | 800 | 1300 | |
1.6 | 50 | 43 | 160 | 125 | 99 | 285 | 4-M16 | 180 | 8.5 |
65 | 46 | 185 | 145 | 120 | 295 | 4-M16 | 180 | 10.7 | |
80 | 46 | 200 | 160 | 135 | 315 | 8-M16 | 220 | 13 | |
100 | 52 | 220 | 180 | 155 | 365 | 8-M16 | 220 | 15 | |
125 | 56 | 250 | 210 | 185 | 400 | 8-M16 | 230 | 23.5 | |
150 | 56 | 285 | 240 | 210 | 475 | 8-M20 | 280 | 31 | |
200 | 60 | 340 | 295 | 265 | 540 | 12-M20 | 360 | 40.7 | |
250 | 68 | 405 | 355 | 310 | 630 | 12-M22 | 360 | 70 | |
300 | 78 | 460 | 410 | 375 | 780 | 12-M22 | 400 | 107 | |
350 | 78 | 520 | 470 | 435 | 885 | 16-M22 | 400 | 129 | |
400 | 102 | 580 | 525 | 485 | 990 | 16-M27 | 400 | 215 | |
450 | 114 | 640 | 585 | 545 | 1100 | 20-M27 | 530 | 305 | |
500 | 127 | 715 | 650 | 609 | 1200 | 20-M30 | 530 | 410 | |
600 | 154 | 840 | 770 | 720 | 1450 | 20-M36 | 600 | 550 | |
700 | 165 | 910 | 840 | 788 | 1700 | 24-M36 | 600 | 820 | |
800 | 190 | 1025 | 950 | 898 | 2000 | 24-M36 | 680 | 950 | |
900 | 203 | 1125 | 1050 | 998 | 2300 | 28-M36 | 680 | 1020 | |
1000 | 216 | 1255 | 1170 | 1110 | 2500 | 28-M42 | 700 | 1120 | |
1200 | 254 | 1485 | 1390 | 1325 | 2800 | 32-M48 | 800 | 1480 |
良好的品质、优良的服务 苏州赖俊艺术创意设计有限公司为你创造更多价值!
“苏州赖俊艺术创意设计有限公司”的期望,不断提升服务质量,精益求精,“真诚的服务”是“苏州赖俊艺术创意设计有限公司”永恒的主题。“苏州赖俊艺术创意设计有限公司”严格按照IS09001-2000 质量体系认证要求,质量严格把关, 责任到人,确保生产、销售、服务的健康运行。加强与用户沟通,竭诚为广大客户提供优良产品,至善至美服务。特此我厂做出以下承诺:
产品标准:
产品严格按照中国GB、HG 标准和美国API等标准设计、制造、验收。密封面硬度达到国家规定要求,宽度超过国家标准。
售前服务:
产品介绍,技术交流,非标产品设计,疑难解答。
售中服务:
守信合同,保证及时供货,随时保持与客户联系。 对特殊或复制的产品,我厂安排技术人员对用户进行产品使用、故障排除
售后服务:
1、“苏州赖俊艺术创意设计有限公司”牌产品品质期为自出厂起12个月,实行“三包”服务(包退、包换、保修)。
2、产品在使用中我厂定期组织技术、质检人员进行访问,征询用户对产品质量、 使用状况、改进意见等方面的反馈, 以便进一步提高产品质量。
3、对用户投诉质量问题,快速作出反应,售后服务人员在24-36小时(省外48小时)赶赴现场。
4、对售后服务,要求用户填写服务后的质量反馈信息表,并作出鉴定意见,以便提高苏州赖俊艺术创意设计有限公司的服务质量。
1、客户如对产品有特殊要求,须在订货合同中提供以下说明:
a、结构长度;
b、连接形式;
c、公称直径、全通径、缩径、管道尺寸;
d、运行介质及温度、压力范围;
e、试验、检验标准及其他要求
2、本厂可根据客户特定要求配置各类驱动装置。
3、如由客户提供确定的阀门类型和型号时,客户应正确说明其型号的含义和要求,在供需双方理解一致的条件下签订合同。
4、期货、订货的客户请先来电函详细告诉所需的阀门型号、规格、数量以及交货时间、地点,并按总的30%预定金或全额货款及时汇入我厂帐户,其余货款待发货前汇入,以便及时安排发货。
订单流程:
1、客户采购清单传真至,或来电咨询
2、收到客户采购清单,为客户提供阀门型号选型与报价(价格清单)。
3、具体商定:交货期、特殊要求等事宜。
订货须知:
1、客户如对产品有特殊要求,须在订货合同中提供以下说明:
|
|||||
|
|||||
2、本厂可根据客户特定要求配置各类驱动装置。
|
|||||
3、如由客户提供确定的阀门类型和型号时,客户应正确说明其型号的含义和要求,在供需双方理解一致的条件下签订合同。
|
|||||
4、期货、订货的客户请先来电函详细告诉所需的阀门型号、规格、数量以及交货时间、地点,并按总的30%预定金或全额货款及时汇入我厂账户, 其余货款待发货前汇入,以便及时安排发货。
|
售中服务:
守信合同,保证及时供货,随时保持与客户联系。
对特殊或复制的产品,我厂安排技术人员对用户进行产品使用、故障排除
售后服务:
1、“苏州赖俊艺术创意设计有限公司”产品品质期为自出厂起12个月,实行“三包”服务(包退、包换、保修)。
2、产品在使用中我厂定期组织技术、质检人员进行访问,征询用户对产品质量、使用状况、改进意见等方面的反馈,
以便进一步提高产品质量。
3、对用户投诉质量问题,快速作出反应,售后服务人员在24-36小时(省外48小时)赶赴现场。
4、对售后服务,要求用户填写服务后的质量反馈信息表,并作出鉴定意见,以便提高“苏州赖俊艺术创意设计有限公司”的服务质量。
声明 |
|